Q41F美标法兰球阀
Q41F美标法兰球阀主要用于截断或接通介质,也可用于流体的调节与控制。广泛用于石油、化工、冶金、电力、建筑、热力、给排水、水处理等行业。按美国标准设计,制造,生产、检测的阀门叫做美标阀门。
|
产品名称: |
美标法兰球阀 |
产品型号: |
Q41F |
|
公称通径: |
DN15~DN600 |
结构形式: |
球形 |
|
公称压力: |
150LB-1500LB |
连接方式: |
法兰 |
|
适用温度: |
-20~+100℃~+550℃ |
驱动方式: |
手动、蜗轮、气动、电动 |
|
阀体材质: |
铸钢、不锈钢 |
制造标准: |
国标GB、德国DIN、美国API、ANSI |
|
适用介质: |
水、蒸汽、燃气、气体及腐蚀性液体等 |
生产厂家: |
welcome赢乐 |
产品说明
Q41F美标法兰球阀主要用于截断或接通介质,也可用于流体的调节与控制。广泛用于石油、化工、冶金、电力、建筑、热力、给排水、水处理等行业。按美国标准设计,制造,生产、检测的阀门叫做美标阀门。适用于Class150~Class1500的各种管路上。美标球阀的关闭件是个球体,球体绕阀体心线作旋转来达到开启、关闭的一种阀门。球阀在管路中主要用来做切断、分配和改变介质的流动方向。主要有API和ASME标准,ASTM是材料标准。
产品特点
①阀杆防飞出结构:当介质通过阀门,阀体中腔的压力可能将阀杆推出。为防止这种情况发生,在阀杆下部设置一凸台结构,这样即使火灾时,填料,止推轴承被烧损或其他原因引起填料等损坏,阀体内的介质压力将使阀杆凸台与阀体上密封紧密接触,防止介质大量从损坏的填料部位处泄露;
②防静电装置:当操作阀门时,由于球体和聚四氟乙烯等非金属材料阀座之间摩擦,会产生静电电荷并聚积在球体行。为防止产生静电火花,特在阀门上设置防静电装置,把产生的静电导出;
③防火结构:本公司浮动球阀阀座采用独特结构,当发生火灾时,非金属密封面材料烧毁时,金属环利用弹簧的弹力推动阀座与球体吻合密封,从而阻止火势蔓延和介质外流;
④中部法兰无外漏结构:阀体与左体的连接部位是靠垫片密封,为防止由于火灾、高温或震动等因素引起的该处密封泄露,特设计为阀体与左体金属金属接触,形成止口法兰,保证无外漏;
⑤自动泄压结构:当滞留在阀门中腔的介质由于管道系统压力或介质温度等因素引起的变化,从而出现中腔压力异常升高时,中腔介质能依靠本身的推力推动阀座而自动泄压,从而确保阀门的安全。
技术参数
|
设计标准 |
AP16D |
ANSI B16.34 |
|
法兰连接结构长度 |
AP16D |
ANSI B16.10 |
|
结构长度(焊接) |
AP16D |
ANSI B16.10 |
|
连接法兰 |
ANSI B16.5、B16.47 |
|
对焊端 |
ANSI B16.25 |
|
试验和检验 |
AP16D |
AP1598 |
主要部件材质
|
名称 |
WCB类 |
CF8类 |
CF3类 |
CF8M类 |
CF3M类 |
|
阀体左体 |
A216-WCB |
A315-CF8 |
A35-CF3 |
A351-CF8M |
A351-CF3M |
|
球体 |
B2-B8 |
A105-1025 |
A182-F304L |
A182-F304L |
A132-F316 |
A182-F316L |
|
B8以上 |
A216-WCB |
A351-CF8M |
A351-CF3 |
A351-CF8M |
A351-CF3M |
|
阀杆 |
A182-F6a |
A182-F304 |
A182-F304L |
A182-F336 |
A182-F316L |
|
阀座 |
PTFE/增强PTFE/NYLIN PTFE/Reinforced PTFE/Nyion |
|
阀座支承圈 |
A105-1025 |
A182-F304 |
A182-F304L |
A182-F316 |
A182-F316L |
|
弹簧 |
|
3yc-7/17-49H |
|
O形圈 |
NBR |
氟橡胶 |
|
螺柱 |
A193-B7 |
A193-B8 |
|
螺母 |
A194-2H |
A194-8 |
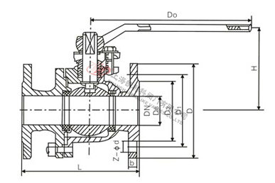
外形结构图
美标150LB外形尺寸
公称压力
PN(Class) |
公称通径inch |
L |
d1 |
D |
D1 |
D2 |
D6 |
f |
f2 |
b |
Z-φd |
H1 |
H2 |
|
RF |
BW |
全通径 |
缩径 |
|
150LB |
1/2 |
108 |
140 |
13 |
- |
89 |
60.5 |
35 |
- |
2 |
- |
12 |
4-15 |
- |
59 |
|
3/4 |
117 |
152 |
19 |
- |
98 |
70 |
43 |
- |
2 |
- |
12 |
4-15 |
- |
63 |
|
1 |
127 |
165 |
25 |
- |
108 |
79.5 |
51 |
- |
2 |
- |
12 |
4-15 |
- |
75 |
|
11/4 |
140 |
178 |
32 |
- |
117 |
89 |
64 |
- |
2 |
- |
13 |
4-15 |
- |
|
|
11/2 |
165 |
190 |
38 |
- |
127 |
98.5 |
73 |
- |
2 |
- |
15 |
4-15 |
- |
95 |
|
2 |
178 |
216 |
51 |
- |
152 |
120.5 |
92 |
- |
2 |
- |
16 |
4-19 |
- |
107 |
|
21/2 |
190 |
241 |
64 |
- |
178 |
139.5 |
105 |
- |
2 |
- |
18 |
4-19 |
- |
142 |
|
3 |
203 |
283 |
76 |
64 |
190 |
152.5 |
127 |
- |
2 |
- |
19 |
4-19 |
- |
152 |
|
4 |
229 |
305 |
102 |
76 |
229 |
190.5 |
157 |
- |
2 |
- |
24 |
8-19 |
- |
178 |
|
5 |
356 |
381 |
127 |
102 |
254 |
216 |
186 |
- |
2 |
- |
24 |
8-22 |
- |
252 |
|
6 |
394 |
457 |
152 |
127 |
279 |
241.5 |
216 |
- |
2 |
- |
26 |
8-22 |
- |
272 |
|
8 |
457 |
521 |
203 |
152 |
343 |
298.5 |
270 |
- |
2 |
- |
29 |
8-22 |
- |
398 |
|
10 |
533 |
559 |
254 |
203 |
406 |
362 |
324 |
- |
2 |
- |
31 |
12-26 |
335 |
495 |
|
12 |
610 |
635 |
305 |
254 |
483 |
432 |
381 |
- |
2 |
- |
32 |
12-26 |
385 |
580 |
|
14 |
686 |
762 |
337 |
305 |
533 |
476 |
412 |
- |
2 |
- |
35 |
12-29 |
430 |
625 |
|
16 |
762 |
838 |
387 |
337 |
597 |
540 |
470 |
- |
2 |
- |
37 |
16-29 |
470 |
720 |
|
18 |
864 |
914 |
438 |
337 |
635 |
578 |
533 |
- |
2 |
- |
40 |
16-32 |
- |
- |
|
20 |
914 |
991 |
489 |
387 |
699 |
635 |
584 |
- |
2 |
- |
43 |
20-32 |
590 |
840 |
|
24 |
1067 |
1143 |
591 |
489 |
813 |
749.5 |
692 |
- |
2 |
- |
48 |
20-35 |
700 |
1050 |
美标300LB外形尺寸
公称压力
PN(Class) |
公称通径inch |
L |
d1 |
D |
D1 |
D2 |
D6 |
f |
f2 |
b |
Z-φd |
H1 |
H2 |
|
RF |
BW |
全通径 |
缩径 |
|
300LB |
1/2 |
140 |
140 |
13 |
- |
95 |
66.5 |
35 |
- |
2 |
- |
15 |
4-15 |
- |
59 |
|
3/4 |
152 |
152 |
19 |
- |
117 |
82.5 |
43 |
- |
2 |
- |
16 |
4-19 |
- |
63 |
|
1 |
165 |
165 |
25 |
- |
124 |
89 |
51 |
- |
2 |
- |
18 |
4-19 |
- |
75 |
|
11/4 |
178 |
178 |
32 |
- |
133 |
98.5 |
64 |
- |
2 |
- |
19 |
4-19 |
- |
- |
|
11/2 |
190 |
190 |
38 |
- |
156 |
114.5 |
73 |
- |
2 |
- |
19 |
4-22 |
- |
95 |
|
2 |
216 |
216 |
51 |
- |
165 |
127 |
92 |
- |
2 |
- |
23 |
8-19 |
- |
107 |
|
21/2 |
241 |
241 |
64 |
- |
190 |
149 |
105 |
- |
2 |
- |
26 |
8-22 |
- |
142 |
|
3 |
283 |
283 |
76 |
64 |
210 |
168.5 |
127 |
- |
2 |
- |
29 |
8-22 |
- |
152 |
|
4 |
305 |
305 |
102 |
76 |
254 |
200 |
157 |
- |
2 |
- |
32 |
8-22 |
- |
178 |
|
5 |
381 |
381 |
127 |
102 |
279 |
235 |
186 |
- |
2 |
- |
35 |
8-22 |
- |
252 |
|
6 |
403 |
457 |
152 |
127 |
318 |
270 |
216 |
- |
2 |
- |
37 |
12-22 |
- |
272 |
|
8 |
502 |
521 |
203 |
152 |
381 |
330 |
270 |
- |
2 |
- |
42 |
12-25 |
- |
398 |
|
10 |
568 |
559 |
254 |
203 |
445 |
387.5 |
324 |
- |
2 |
- |
48 |
16-29 |
335 |
495 |
|
12 |
648 |
635 |
305 |
254 |
521 |
451 |
381 |
- |
2 |
- |
51 |
16-32 |
385 |
580 |
|
14 |
762 |
762 |
337 |
305 |
584 |
514.5 |
413 |
- |
2 |
- |
54 |
20-32 |
430 |
625 |
|
16 |
838 |
838 |
387 |
337 |
648 |
571.5 |
470 |
- |
2 |
- |
58 |
20-35 |
470 |
720 |
|
18 |
914 |
914 |
432 |
337 |
711 |
628.5 |
533 |
- |
2 |
- |
61 |
24-35 |
- |
- |
|
20 |
99 |
991 |
483 |
387 |
775 |
686 |
584 |
- |
2 |
- |
64 |
24-35 |
590 |
840 |
|
24 |
1143 |
1143 |
591 |
483 |
914 |
813 |
692 |
- |
2 |
- |
70 |
24-41 |
700 |
1050 |
美标400LB外形尺寸
公称压力
PN(Class) |
公称通径inch |
L |
d1 |
D |
D1 |
D2 |
D6 |
f |
f2 |
b |
Z-φd |
H1 |
H2 |
|
RF |
BW |
全通径 |
缩径 |
|
400LB |
1/2 |
140 |
140 |
13 |
- |
95 |
66.7 |
35 |
- |
6.4 |
- |
14.5 |
4-15 |
- |
59 |
|
3/4 |
152 |
152 |
19 |
- |
117 |
82.5 |
43 |
- |
6.4 |
- |
16 |
4-19 |
- |
63 |
|
1 |
165 |
165 |
25 |
- |
124 |
88.9 |
51 |
- |
6.4 |
- |
17.5 |
4-19 |
- |
75 |
|
11/4 |
178 |
178 |
32 |
- |
|
|
|
|
|
|
|
|
|
|
|
11/2 |
190 |
190 |
38 |
- |
156 |
114.3 |
73 |
- |
6.4 |
- |
22.5 |
4-22 |
- |
95 |
|
2 |
216 |
216 |
51 |
- |
165 |
127 |
92 |
- |
6.4 |
- |
25.5 |
8-19 |
- |
107 |
|
21/2 |
241 |
241 |
64 |
- |
|
|
|
|
|
|
|
|
|
|
|
3 |
283 |
283 |
76 |
64 |
|
|
|
|
|
|
|
|
|
|
|
4 |
305 |
305 |
102 |
76 |
254 |
200 |
157 |
- |
6.4 |
- |
35 |
8-26 |
- |
178 |
|
5 |
381 |
381 |
127 |
102 |
|
|
|
|
|
|
|
|
|
|
|
6 |
403 |
457 |
152 |
127 |
318 |
269.9 |
216 |
- |
6.4 |
- |
41.5 |
12-26 |
250 |
300 |
|
8 |
502 |
521 |
203 |
152 |
381 |
330.2 |
270 |
- |
6.4 |
- |
18 |
12-29 |
294 |
374 |
|
10 |
568 |
559 |
254 |
203 |
445 |
387.3 |
324 |
- |
6.4 |
- |
54 |
16-32 |
370 |
445 |
|
12 |
648 |
635 |
305 |
254 |
520 |
450.8 |
381 |
- |
6.4 |
- |
57.5 |
16-35 |
420 |
515 |
|
14 |
762 |
762 |
337 |
305 |
585 |
514.3 |
413 |
- |
6.4 |
- |
60.5 |
20-35 |
460 |
550 |
|
16 |
838 |
838 |
387 |
337 |
650 |
571.5 |
470 |
- |
6.4 |
- |
63.5 |
20-39 |
505 |
615 |
|
18 |
914 |
914 |
432 |
337 |
|
|
|
|
|
|
|
|
|
|
|
20 |
991 |
991 |
483 |
387 |
775 |
685.8 |
584 |
- |
6.4 |
- |
70 |
24-42 |
630 |
810 |
|
24 |
1143 |
1143 |
591 |
483 |
915 |
812.8 |
692 |
- |
6.4 |
- |
76.5 |
24-48 |
825 |
1010 |
美标600LB外形尺寸
公称压力
PN(Class) |
公称通径inch |
L |
d1 |
D |
D1 |
D2 |
D6 |
f |
f2 |
b |
ZZ-φd |
H1 |
H2 |
|
RF |
BW |
全通径 |
缩径 |
|
600LB |
1/2 |
165 |
165 |
13 |
- |
95 |
66.5 |
35 |
- |
6.4 |
- |
15 |
4-15 |
- |
59 |
|
3/4 |
191 |
191 |
19 |
- |
118 |
82.5 |
43 |
- |
6.4 |
- |
16 |
4-19 |
- |
63 |
|
1 |
216 |
216 |
25 |
- |
124 |
89 |
51 |
- |
6.4 |
- |
18 |
4-19 |
- |
75 |
|
11/4 |
229 |
229 |
32 |
- |
133 |
98.5 |
64 |
- |
6.4 |
- |
21 |
4-19 |
- |
- |
|
11/2 |
241 |
241 |
38 |
- |
,, , , , , 156 |
114.5 |
73 |
- |
6.4 |
- |
23 |
4-22 |
- |
95 |
|
2 |
292 |
292 |
51 |
38 |
165 |
127 |
92 |
- |
6.4 |
- |
26 |
8-19 |
- |
107 |
|
21/2 |
330 |
330 |
64 |
51 |
190 |
179 |
105 |
- |
6.4 |
- |
29 |
8-22 |
- |
178 |
|
3 |
356 |
356 |
76 |
64 |
210 |
168.5 |
127 |
- |
6.4 |
- |
32 |
8-22 |
- |
- |
|
4 |
432 |
432 |
102 |
76 |
273 |
216 |
157 |
- |
6.4 |
- |
38 |
8-25 |
- |
- |
|
6 |
559 |
559 |
152 |
127 |
356 |
292 |
216 |
- |
6.4 |
- |
48 |
12-29 |
250 |
300 |
|
8 |
660 |
660 |
200 |
152 |
419 |
349 |
270 |
- |
6.4 |
- |
56 |
12-32 |
294 |
374 |
|
10 |
787 |
787 |
248 |
200 |
508 |
432 |
324 |
- |
6.4 |
- |
64 |
16-35 |
370 |
445 |
|
12 |
838 |
838 |
298 |
248 |
559 |
489 |
381 |
- |
6.4 |
- |
67 |
20-35 |
420 |
515 |
|
14 |
889 |
889 |
327 |
298 |
603 |
527 |
413 |
- |
6.4 |
- |
70 |
20-38 |
460 |
550 |
|
16 |
991 |
991 |
375 |
327 |
686 |
603 |
470 |
- |
6.4 |
- |
77 |
20-41 |
505 |
615 |
|
18 |
1092 |
1092 |
432 |
327 |
743 |
654 |
533 |
- |
6.4 |
- |
83 |
20-45 |
630 |
810 |
|
20 |
1194 |
1194 |
483 |
375 |
813 |
724 |
584 |
- |
6.4 |
- |
89 |
24-45 |
- |
- |
美标900LB外形尺寸
公称压力
PN(Class) |
公称通径inch |
L |
d1 |
D |
D1 |
D2 |
D6 |
f |
f2 |
b |
ZZ-φd |
H1 |
H2 |
|
RF |
BW |
全通径 |
缩径 |
|
900LB |
2 |
368 |
368 |
47 |
38 |
216 |
165.1 |
92 |
- |
7.92 |
- |
38.5 |
8-26 |
- |
- |
|
3 |
381 |
381 |
73 |
57 |
244 |
190.5 |
127 |
123.82 |
7.92 |
- |
41.5 |
8-29 |
191 |
259 |
|
4 |
457 |
457 |
98 |
73 |
292 |
234.5 |
157 |
149.22 |
7.92 |
- |
44.5 |
8-32 |
216 |
297 |
|
6 |
610 |
610 |
146 |
121 |
381 |
317.5 |
216 |
211.12 |
7.92 |
- |
50 |
12-32 |
270 |
360 |
|
8 |
737 |
737 |
190 |
146 |
470 |
393.7 |
270 |
269.88 |
7.92 |
- |
63.5 |
12-39 |
322 |
394 |
|
10 |
838 |
838 |
238 |
180 |
545 |
459.5 |
324 |
323.85 |
7.92 |
- |
70 |
16-39 |
420 |
502 |
|
12 |
965 |
965 |
282 |
238 |
610 |
533.4 |
381 |
381.00 |
7.92 |
- |
79.5 |
20-39 |
470 |
572 |
|
14 |
1029 |
1029 |
- |
- |
- |
- |
- |
419.10 |
11.13 |
- |
86 |
20-42 |
510 |
675 |
|
16 |
1130 |
1130 |
- |
- |
- |
- |
- |
469.90 |
11.13 |
- |
89 |
20-45 |
600 |
762 |
|
18 |
1219 |
1219 |
- |
- |
- |
- |
- |
533.40 |
12.7 |
- |
102 |
20-51 |
700 |
866 |
|
20 |
1334 |
1334 |
- |
- |
- |
- |
- |
584.20 |
12.7 |
- |
108 |
20-54 |
720 |
894 |
美标1500LB外形尺寸
公称压力
PN(Class) |
公称通径inch |
L |
d1 |
D |
D1 |
D2 |
D6 |
f |
f2 |
b |
ZZ-φd |
H1 |
H2 |
|
RF |
BW |
全通径 |
缩径 |
|
1500LB |
2 |
368 |
368 |
47 |
47 |
216 |
165.1 |
124 |
95.25 |
7.92 |
- |
38.5 |
8-26 |
126 |
217 |
|
3 |
470 |
470 |
73 |
73 |
267 |
203.2 |
168 |
136.92 |
7.92 |
- |
48 |
8-32 |
191 |
259 |
|
4 |
564 |
564 |
98 |
98 |
311 |
245.5 |
194 |
161.92 |
7.92 |
- |
54 |
8-35 |
216 |
297 |
|
6 |
705 |
705 |
146 |
146 |
394 |
317.5 |
248 |
211.12 |
9.52 |
- |
83 |
12-39 |
296 |
365 |
|
8 |
832 |
832 |
190 |
190 |
483 |
393.7 |
318 |
269.88 |
11.13 |
- |
92 |
12-45 |
378 |
475 |
|
10 |
991 |
991 |
238 |
238 |
565 |
482.6 |
371 |
323.85 |
11.13 |
- |
108 |
12-51 |
495 |
578 |
|
12 |
1130 |
1130 |
282 |
282 |
675 |
571.5 |
438 |
381.00 |
14.27 |
- |
124 |
12-54 |
542 |
696 |
|
14 |
1257 |
1257 |
- |
- |
826 |
635 |
489 |
419.10 |
15.88 |
- |
133.5 |
16-61 |
590 |
761 |
|
16 |
1384 |
1384 |
- |
- |
915 |
704.5 |
546 |
469.90 |
17.48 |
- |
146.5 |
16-67 |
670 |
831 |
|
20 |
1664 |
1664 |
- |
- |
1170 |
990.6 |
673 |
584.20 |
17.48 |
- |
178 |
16-80 |
750 |
950 |
声明:【Q41F美标法兰球阀】规格型号、结构尺寸由welcome赢乐提供,如何选择适用的Q41F美标法兰球阀产品,使之在工艺控制中安全可靠、经济适用,可致电我司销售部门及技术部门,我们将在最短的时间内为您解答! |