
BZ41H夹套保温闸阀
BZ41H夹套保温闸阀主要用于石油、化工、冶金、制药等各类系统中,适用于公称压力PN1.6~6.4MPa(国标)150LB~300LB-600LB(美标)工作温度-29~425℃(碳钢)、-40~500℃(不锈钢)的管路上作启闭用。该阀门的夹套焊装于阀门的两法兰之间,阀门的侧面、底部设置有夹套的连接口,夹套中可自由地流过蒸汽或其它热的保温介质,确保粘稠介质可顺畅地流过阀门。
| 产品名称: | 夹套保温闸阀 | 产品型号: | BZ41H |
| 公称通径: | DN40~DN300 | 结构形式: | 闸板式 |
| 公称压力: | 1.6Mpa~6.4Mpa/150LB-300LB-600LB | 连接方式: | 法兰 |
| 适用温度: | -20ºC~+150ºC~425ºC~550ºC | 驱动方式: | 手动、伞齿轮、电动、气动、液动 |
| 阀体材质: | 锻钢、铸钢、不锈钢 | 制造标准: | 国标GB、德国DIN、美国API、ANSI |
| 适用介质: | 水、油、蒸汽、导热油、滤清、易结晶物 | 生产厂家: | welcome赢乐 |
| 设计制造 | 结构长度 | 连接法兰 | 压力温度等级 | 试验与检验 |
|
GB12234 -89 API600 |
GB12221-89 |
ANSI B16.5 GB9112~9131 JB/T74~90 JB/T79-94 SH3006 HG20615~20635 |
GB9131 ANSI B16.34 |
JB/T 9092 GB13927 API598 |
| 型号 | 公称压力 | 试验压力(MPa) | 工作温度℃ | 适用介质 | ||
| 强度(水)(MPa) | 密封(水)(MPa) | 低压密封(空气)(MPa) | ||||
|
BZ41H-16C BZ41W-16P(R) |
1.6 | 2.4 | 1.8 | 0.6 | ≤425 | 酸、碱、滤清类 |
|
BZ41H-25C BZ41W-25P(R) |
2.5 | 3.8 | 2.8 | 0.6 | ≤550 | 酸、碱、滤清类 |
|
BZ41H-40C BZ41W-40P(R) |
4.0 | 6.0 | 4.4 | 0.6 | ≤450 | 酸、碱、滤清类 |
|
BZ41H-64C BZ41W-64P(R) |
6.4 | 9.6 | 7.0 | 0.6 | ≤300 | 酸、碱、滤清类 |
| 零件名称 | ZG1Cr18Ni9Ti系列 | ZG00Cr18Ni10系列 | ZG1Cr18Ni12Mo2Ti系列 | ZG00Cr17Ni14Mo2系列 | WCB系列 |
| 阀体/阀盖 | ZG1Cr18Ni9Ti | ZG00Cr18Ni10 | ZG1Cr18Ni12Mo2Ti | ZG00Cr17Ni14Mo2 | WCB |
| 闸板 | ZG1Cr18NI9Ti | ZG00Cr18Ni10 | ZG1Cr18Ni12Mo2Ti | ZG00Cr17Ni14Mo2 | 1Cr13 |
| 阀杆 | 1Cr18Ni9Ti | ooCr18Ni10 | 1Cr18Ni12Mo2Ti | ooCr17Ni14Mo2 | 1Cr13 |
| 填料 | 石墨+304 | 石墨+304 | 石墨+304 | 石墨+304 | 石墨Graphite |
| 垫片 |
石墨+304 Graphite+304 |
石墨+304 Graphite+304 |
石墨+304 Graphite+304 |
石墨+304 Graphite+304 |
石墨+304 Graphite+304 |
| 压盖 | ZG1Cr181Ni10 | ZG00Cr18Ni10 | ZG1Cr18Ni12Mo2Ti | ZG00Cr17Ni14Mo2 | WCB |
| 填料压环 | 1Cr18Ni9Ti | 00Cr18Ni10 | 1Cr18Mi12Mo2Ti | 00Cr17Ni14Mo2 | 1Cr13 |
| 螺栓 | 1Cr171Ni2 | 1Cr171Ni2 | 1Cr171Ni2 | 1Cr171Ni2 | 35CrMoA |
| 螺母 | 1Cr18Ni9Ti | 1Cr18Ni9Ti | 1Cr18Ni9Ti | 1Cr18Ni9Ti | 45 |
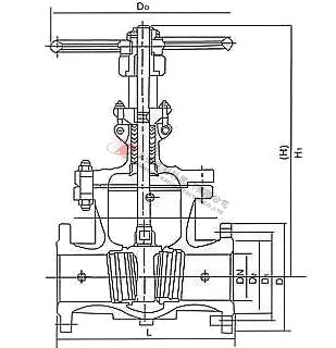
| 型号 | 压力 |
公称通径 DN |
尺寸(mm) | |||||||
| L | D | D1 | D2 | b | z-d | H | D0 | |||
|
BZ41H-16C BZ41W-16P BZ41W-16R |
1.6 | 40 | 200 | 160 | 125 | 100 | 18-3 | 4-18 | 310 | 200 |
| 50 | 250 | 180 | 145 | 120 | 18-3 | 4-18 | 358 | 240 | ||
| 65 | 265 | 195 | 160 | 135 | 20-3 | 8-18 | 373 | 240 | ||
| 80 | 280 | 215 | 180 | 155 | 20-3 | 8-18 | 435 | 280 | ||
| 100 | 300 | 245 | 210 | 185 | 22-3 | 8-18 | 500 | 300 | ||
| 125 | 325 | 280 | 240 | 210 | 24-3 | 8-23 | 614 | 320 | ||
| 150 | 350 | 335 | 295 | 265 | 26-3 | 12-23 | 674 | 360 | ||
| 200 | 400 | 405 | 355 | 320 | 30-3 | 12-25 | 818 | 400 | ||
| 250 | 450 | 460 | 410 | 375 | 30-4 | 12-25 | 969 | 450 | ||
| 300 | 500 | 520 | 470 | 435 | 34-4 | 16-25 | 1145 | 560 | ||
|
BZ41H-25C BZ41W-25P BZ41W-25R |
2.5 | 40 | 200 | 160 | 125 | 100 | 20-3 | 4-18 | 358 | 240 |
| 50 | 250 | 180 | 145 | 120 | 22-3 | 8-18 | 373 | 240 | ||
| 65 | 265 | 195 | 160 | 135 | 22-3 | 8-18 | 435 | 280 | ||
| 80 | 280 | 230 | 190 | 160 | 24-3 | 8-18 | 500 | 300 | ||
| 100 | 300 | 270 | 220 | 188 | 28-3 | 8-15 | 614 | 320 | ||
| 125 | 325 | 300 | 250 | 218 | 30-3 | 8-25 | 674 | 360 | ||
| 150 | 350 | 360 | 310 | 278 | 34-3 | 12-25 | 818 | 400 | ||
| 200 | 400 | 425 | 370 | 332 | 36-3 | 12-30 | 969 | 450 | ||
| 250 | 450 | 485 | 430 | 390 | 40-4 | 12-30 | 1145 | 560 | ||
| 300 | 500 | 550 | 490 | 448 | 40-4 | 16-34 | 1145 | 640 | ||
声明:【BZ41H夹套保温闸阀】规格型号、结构尺寸由welcome赢乐提供,如何选择适用的BZ41H夹套保温闸阀产品,使之在工艺控制中安全可靠、经济适用,可致电我司销售部门及技术部门,我们将在最短的时间内为您解答! |