首页
welcome赢乐介绍
新闻中心
welcome赢乐概况
服务理念
售后服务
联系我们
产品中心
jtgk.png

产品中心

Q41N高压锻钢球阀

您的位置:阀门 - 球阀 - Q41N高压锻钢球阀 更新时间:2026-01-12 02:01:55
Q41N高压锻钢球阀
    • 质量安全:压力、材质、密封等全方位检测确保质量过关!
    • 价格比较:在相同品质的情况下,厂里直销,更具有优势!
    • 交货快捷:常规产品现货供应,生产加工销售一条龙服务!
      上海凯利科阀门致力于高品质阀门的设计、研发、生产销售服务于一体的大型阀门企业,科技创新,永不止步,与您携手共创辉煌...

    • 产品描述
    • 在线询价
    • 技术咨询
    Q41N高压锻钢球阀Q41N高压锻钢球阀

    Q41N高压锻钢球阀主要用于石油,天然气的长距离管线输送和城市煤气管道系统.由于长输管线用阀的独有特征,因而在设计时充分考虑了其承受管道应力的能力,以及安全性,耐候性,长期使用的可靠性密封设计结构等。

    产品名称: 高压锻钢球阀 产品型号: Q41N
    公称通径: DN15~DN200 结构形式: 球形
    公称压力: 16.0Mpa~32.0Mpa 连接方式: 法兰、螺纹、焊接
    适用温度: -20~80℃ 驱动方式: 手动、电动、气动
    阀体材质: A105锻钢、WCB铸钢、不锈钢 制造标准: 国标GB、德国DIN、美国API、ANSI
    适用介质: 水、油、燃气、气体及某些腐蚀性液体 生产厂家: welcome赢乐

    产品说明

    Q41N高压锻钢球阀主要用于石油,天然气的长距离管线输送和城市煤气管道系统.由于长输管线用阀的独有特征,因而在设计时充分考虑了其承受管道应力的能力,以及安全性,耐候性,长期使用的可靠性密封设计结构等。驱动方式可选用手动、蜗轮、气动、电动,连接方式可选用法兰、焊接,结构形式为三段式,密封结构可选用软密封、硬密封,压力范围PN1.0-32.0Mpa,公称通径为DN10-200mm,材质可选用锻钢、锻不锈钢。由于阀门的使用范围非常的广泛,同一种阀门在不同的场合与工况有不同的搭配。高压锻钢球阀是用带有圆形通道的球体作启闭件,球体随阀杆转动实现启闭动作的阀门,既正向旋转1/4圈(90°)时,阀关断。反向旋转1/4圈(90°)时,阀开启。。球阀的启闭件是一个有孔的球体,绕垂直于通道的轴线旋转,从而达到启闭通道的目的。球阀主要供开启和关闭管道和设备介质之用。

    产品特点

    1、所有部件均为锻件
    2、采用下装式阀杆,设备倒密封结构
    3、采用镶嵌式阀座,阀座背后设备O型圈,确保介质不外漏
    4、密封面采用尼龙或聚四氟乙烯,它的磨擦系数通常为巴氏合金的1/3,因此它是一种自然滑性材料。但抗弯曲强度和冲击强度及较高的延性,与金属不相上下。

    主要零件材料

    零件名称 材质
    GB ASTM
    阀体、阀盖 WCB A216-WCB
    密封圈 尼龙 尼龙
    球体 1Cr18Ni9Ti SS 304
    阀座、阀杆 2Cr13 A246-416
    O形圈 四氟  四氟
    双头螺栓 35CrMoA A193-B7

    主要性能规范

    公称压力PN 16 32 MPa
    强度试验压力PT 24 48 MPa
    低压密封试验力 0.6 MPa
    高压密封试验力 17.6 35.2 MPa
    适用介质 水、油品、蒸汽
    适用温度 -40~120℃

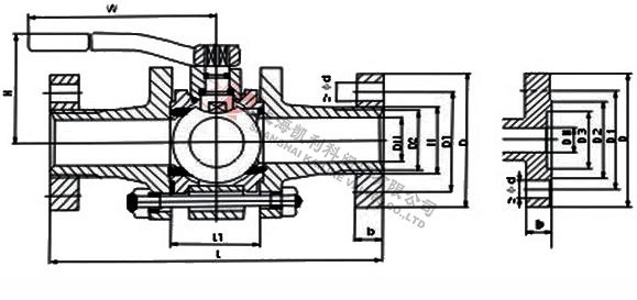
    外形结构图

    主要连接尺寸

    公称
    压力
    公称
    通径
    主要尺寸
    L L1 D D1 H W M D2 b Z-Φd
    法兰 对焊 法兰 对焊 法兰 对焊 法兰 对焊 法兰 对焊 法兰
    16.0 10 210 150 52 60 95 90 60 18 77 58 220 M24×2 18 20 3-18
    15 230 170 62 70 95 100 60 23 85 62 220 M24×2 20 20 3-18
    20 240 190 73 80 105 110 68 29 94 75 250 M33×2 28 20 3-18
    25 260 205 77 95 105 115 68 36 100 80 250 M33×2 28 22 3-18
    32 300 230 100 110 115 150 80 43 120 96 300 M42×2 38 24 4-18
    40   260 110 120 165 170 115 49 150 111 400 M52×2 48 30 6-26
    50 400 330 130 140 165 200 115 61 165 128 450 M64×3 58 32 6-26
    65 490 360 140 150 200 225 145 80 180 180 500 M80×3 74 40 6-29
    80 580 380 150 160 225 270 170 105 200 200 600 M100×3 94 50 6-33
    100 620 430 178 188 260 320 195 118 245 245 800 M125×4 115 60 6-36
    32.0 10 210 150 52 60 95 90 60 18 77 58 220 M24×2 18 20 3-18
    15 230 170 62 70 105 100 68 23 85 62 220 M33×2 28 20 3-18
    20 240 190 73 80 105 110 68 29 94 75 250 M33×2 28 20 3-18
    25 260 205 77 95 115 115 80 36 100 80 250 M42×2 35 25 4-18
    32 300 230 100 110 165 150 115 43 120 96 300 M52×2 41 30 4-22
    40 350 260 110 120 165 170 115 49 150 111 400 M64×3 47 35 6-26
    50 400 330 130 140 200 200 145 61 165 128 450 M80×3 70 40 6-29
    65 490 360 140 150 225 225 170 80 180 180 500 M100×3 90 50 6-33
    80 580 380 150 160 260 270 195 105 200 200 600 M125×4 112 55 6-36
    100 620 430 178 188 300 320 235 118 245 245 800 M155×4 135 65 8-36
     

    声明:【Q41N高压锻钢球阀】规格型号、结构尺寸由welcome赢乐提供,如何选择适用的Q41N高压锻钢球阀产品,使之在工艺控制中安全可靠、经济适用,可致电我司销售部门及技术部门,我们将在最短的时间内为您解答!

    上一篇:Q47F锻钢固定球阀 下一篇:KQ41F抗硫球阀

    

    Copyright ©2011-2023 welcome赢乐,版权所有。 沪ICP备11046016号-29 网站地图

    销售电话:021-31001158

    手机号码:13816746668 陈国辉/经理

    电子邮件:klkvalves@126.com@126.com

    主营产品:球阀,闸阀,蝶阀,截止阀,止回阀,调节阀

    本周热门:不锈钢阻火器全天候呼吸阀气动球阀气动蝶阀气动刀闸阀气动调节阀电动球阀电动蝶阀电动刀闸阀电动调节阀不锈钢球阀不锈钢闸阀不锈钢截止阀不锈钢止回阀不锈钢电磁阀高压电磁阀高压球阀波纹管截止阀

    官方网址:www.fm058.com